STRUCTURE
TYPE D’OUVRAGE
DÉVELOPPEMENT
Adresse : 20 Rue Jean Zay, 95260 Beaumont-sur-Oise
Maître d’Ouvrage : Mairie de Beaumont-sur-Oise
Architecte :
Mission AI : Conception Structure + Suivi de chantier structure
Entreprise : Charpentier de Paris
Surface : 300 m2
Montant travaux : 1 M € HT
État : Livré en 2019 (phase 1) et 2020 (phase 2)
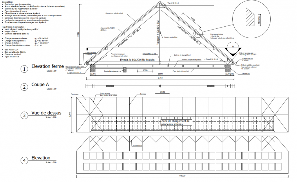
Suite à l’affaissement de la couverture de l’école Jean Zay de Beaumont-sur-Oise, Assemblage ingénierie a effectué les études de démolition/ reconstruction de la charpente du bâtiment principal et de renfort de la charpente du bâtiment annexe.
Les travaux de renfort (Phase 1) ont été effectués en milieu occupé et les travaux de reconstruction (Phase 2) ont été réalisés pour moitié à l’été 2019 et pour l’autre moitié à l’été 2020.
137 rue d’Aboukir
75002 Paris
1 rue François Mignotte
21700 Nuits-Saint-Georges
2024 © Assemblage Ingénierie | Mentions légales | Politique de confidentialité | Charte RSE | Politique de cookies (UE)